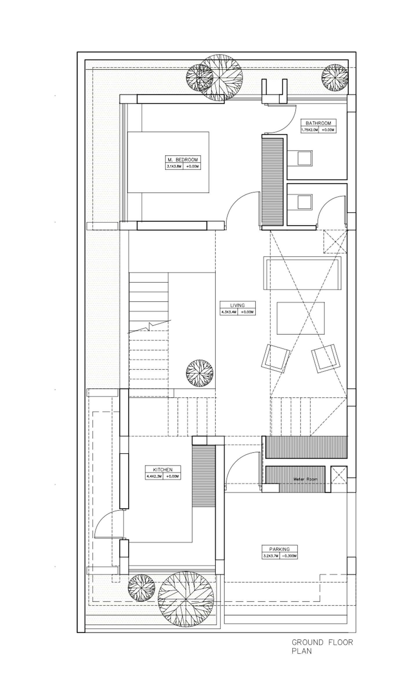
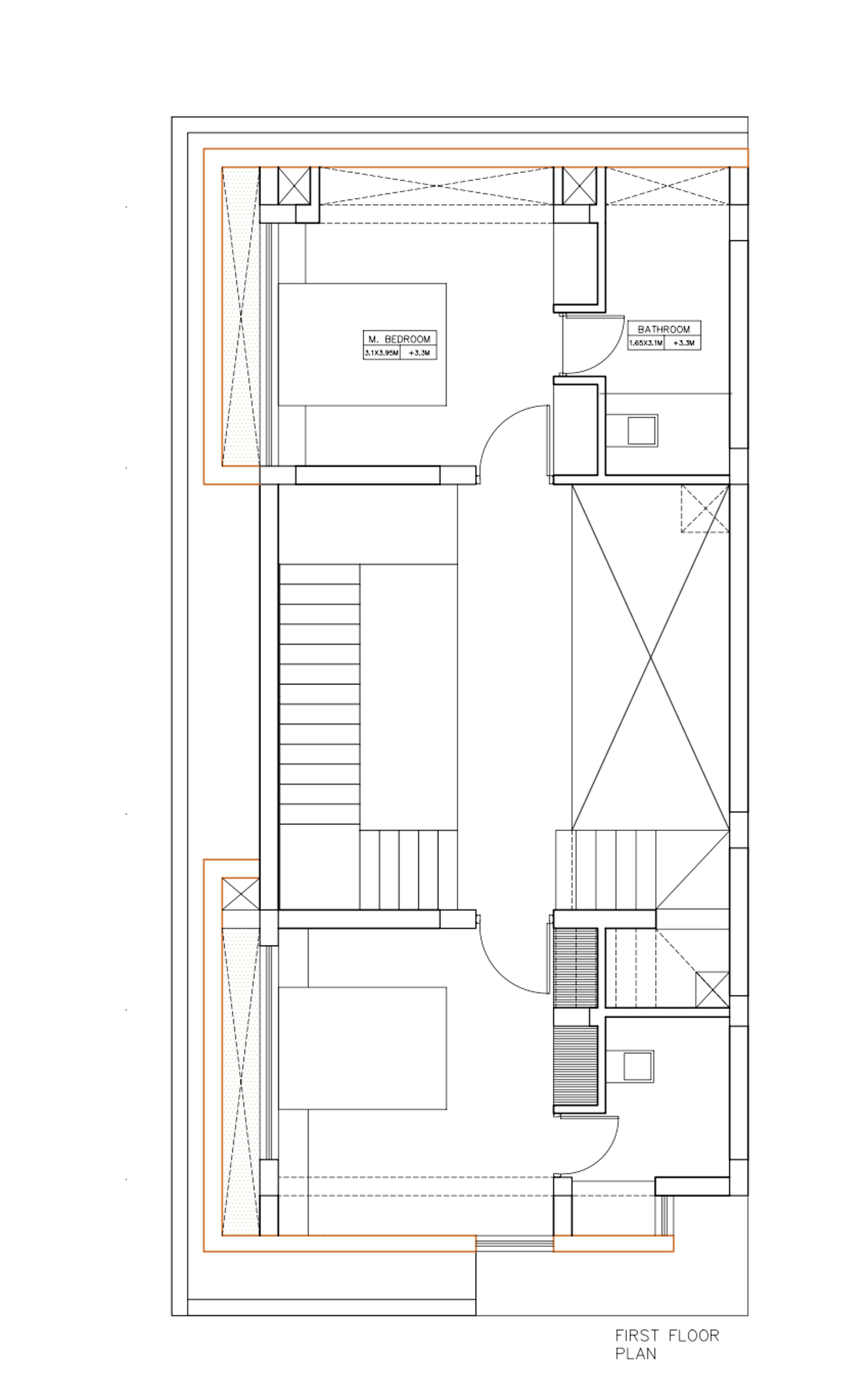
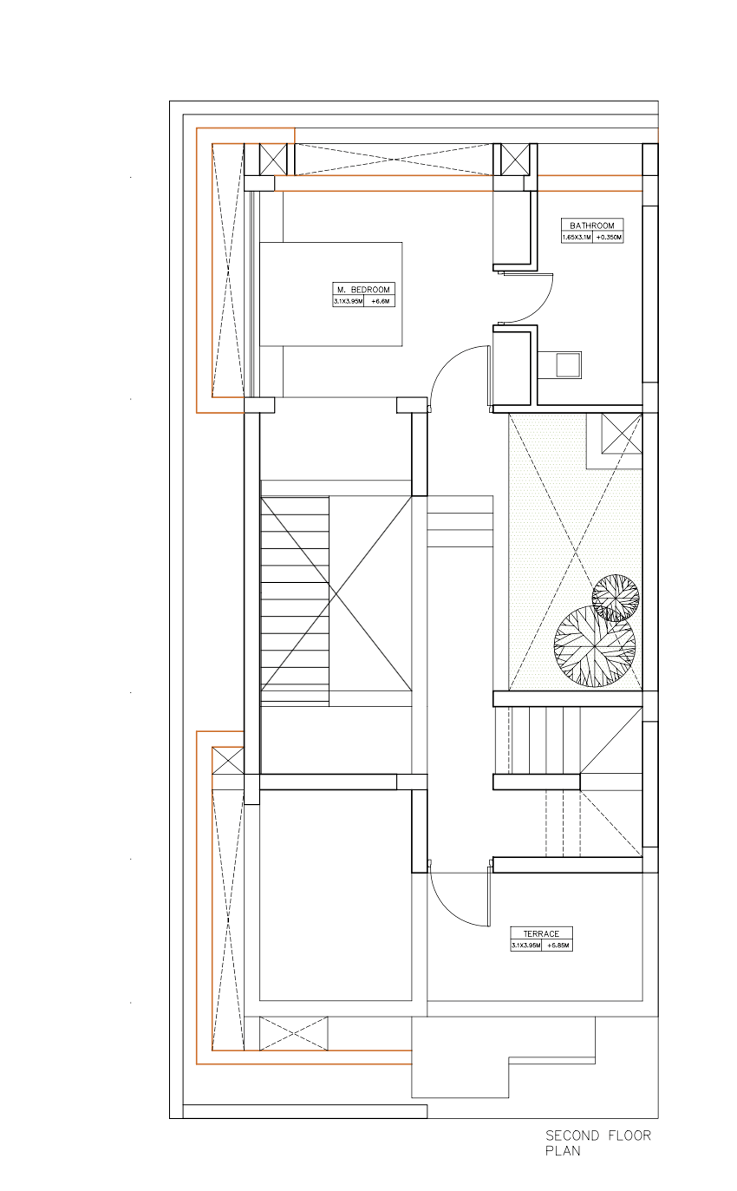
Brick House
This house is designed on a compact 25’ × 50’ plot for a retired couple, located in a dense residential context and a harsh tropical climate with summer temperatures reaching up to 45°C. The design focuses on creating a climate-responsive home that maximizes daylight, ventilation, and comfort despite the tight surroundings.
A double-height central courtyard forms the core of the house, acting as a light funnel and visually connecting all spaces. From the living area, one can experience the house as a whole. To enhance natural ventilation, a staggered courtyard is introduced at the second floor, allowing cool air to enter from below while hot air escapes above, creating an effective stack effect. The upper courtyard also serves as a green social space for family and friends.
Bedrooms are designed to receive maximum natural light while maintaining privacy through a double-layered façade of brick screens and glass, with creepers and plants in between. This green buffer acts as thermal insulation and helps reduce heat gain, making the house comfortable throughout the year.
Shegaon, Maharashtra, India










